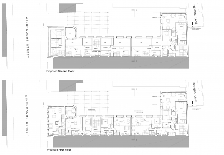
Early proposals by another practice to convert this late 19C grain warehouse failed to secure the support of the local planning authority. We were subsequently appointed and developed innovative proposals for the conversion of this 'locally indexed' building within the Cheltenham Conservation Area.11 two-bed apartments and a retail unit were consented along with 12 under-croft parking spaces. A duplex arrangement with double height spaces and mezzanine floors maximises the development potential whilst retaining the historic fabric and inherent character of this brick built industrial building. A contemporary additional storey provides penthouse accommodation. The design is typical of our innovative approach to sensitive, heritage projects.


